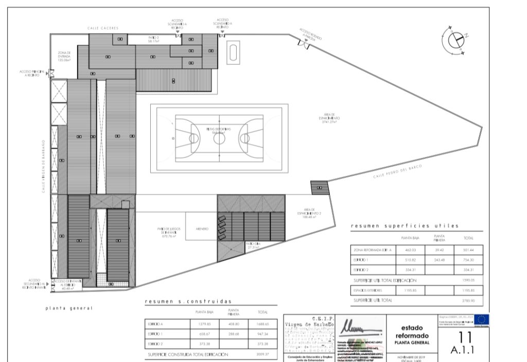
Continúa el proceso para la construcción de la ampliación del C.E.I.P. Virgen de Barbaño

El Ayuntamiento de Montijo ha remitido a la Consejería de Educación y Empleo la licencia urbanística para la contratación de las obras de Ampliación, reforma de espacios y construcción de gimnasio para el agrupamiento del CEIP Virgen de Barbaño.
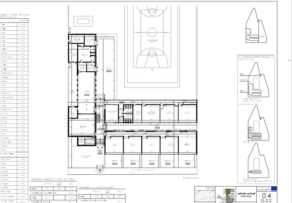
Por su parte, la Consejería de la Junta de Extremadura, ha remitido al Ayuntamiento de Montijo un ejemplar del proyecto así como el informe de supervisión del mismo.
Una vez que la Consejería de Educación reciba la licencia, se procederá a iniciar el expediente para la contratación de las obras.